Дом из СИП панелей с лофтом и вторым светом 

Индивидуальный проект дома со вторым светом и просторной террасой.
Уютный и красивый загородный дом для небольшой семьи с фасадной отделкой по цене вдвое меньшей чем стоимость однокомнатной квартиры в Санкт-Петербурге. Несмотря на незначительную площадь дома, вы сможете не только принимать гостей, но и предложить им уютное спальное место для ночлега в районе лофта, находящегося в теплом контуре дома.
Второй свет позволит получить значительно больше количества света даже в зимний период, а площадь окон компенсирует вам расходы на фасадную и внутреннюю отделку дома во время его возведения.

Проект дома SIPL-97-1


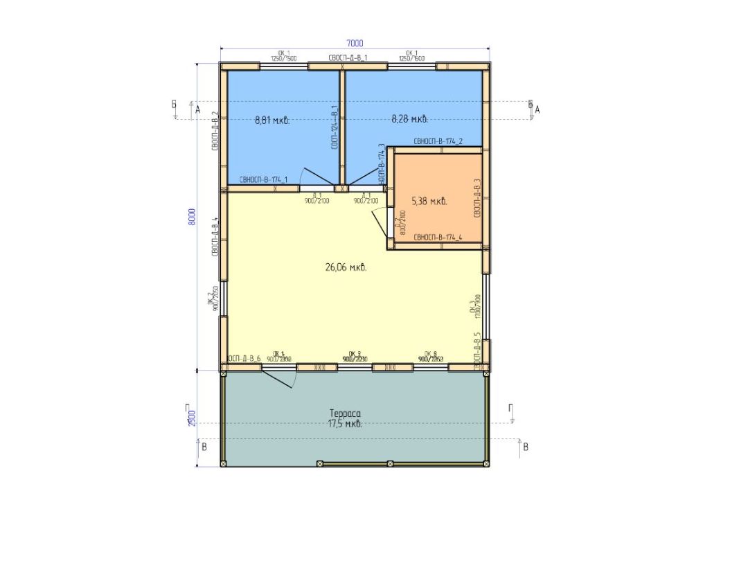
  • площадь: 97,12 М.КВ.
  • размеры: 7x10,5
  • спален: 2
  • санузлов: 1
  • технология: СИП панели
  • материнский капитал: да
  • ипотека: да
  • поэтапная оплата: да



цЕНА НА СТРОИТЕЛЬСТВО ДОМА И КОМПЛЕКТАЦИЯ

Стоимость строительства формируется исходя из актуальных цена н рынке строительных материалов на день формирования запроса

Эконом
Экономный подход!
Произведем домокомплект и соберем коробку дома на участке заказчика.
    КОРОБКА ДОМА
    ПЕРЕКРЫТИЯ С УТЕПЛЕНИЕМ
    КРОВЕЛЬНЫЙ МАТЕРИАЛ
    ШУМОИЗОЛЯЦИЯ
    ДОСТАВКИ до 70 км от КАД








Узнать актуальную стоимость
Дом под отделку
Сделаем самое основное!
Изготовим домокомплект и соберем дом на вашем участке
    ФУНДАМЕНТ СВАЙНЫЙ
    КОРОБКА ДОМА
    ПЕРЕКРЫТИЯ С УТЕПЛЕНИЕМ
    КРОВЕЛЬНЫЙ МАТЕРИАЛ
    ШУМОИЗОЛЯЦИЯ
    ОКНА
    ВХОДНАЯ ДВЕРЬ
    ДОСТАВКИ до 70 км от КАД



Узнать актуальную стоимость
Дом с фасадом
Вы получаете готовый дом с фасадной отделкой.

Выбор заказчиков

    ФУНДАМЕНТ СВАЙНЫЙ
    КОРОБКА ДОМА
    ПЕРЕКРЫТИЯ С УТЕПЛЕНИЕМ
    КРОВЕЛЬНЫЙ МАТЕРИАЛ
    ШУМОИЗОЛЯЦИЯ

    ОКНА
    ВХОДНАЯ ДВЕРЬ
    ФАСАДНАЯ ОТДЕЛКА
    ПОДШИВ СВЕСОВ КРЫШИ
    ОБНАЛИЧКА ОКОН И ДВЕРЕЙ
    ОТЛИВЫ ДОМА И ОКОН
    ТЕРРАСНАЯ ДОСКА НА ТЕРРАСЕ
    ДОСТАВКИ до 70 км от КАД


Узнать актуальную стоимость
Посчитаем ваш проект дома
Вам понравился проект дома на другом сайте?

Вышлите его нам на просчет и мы поможем вам определиться со стоимостью строительства с указанием комплектации.

Напишите в чат
Свяжитесь прямо сейчас!

Обсудите все нюансы с нашей командой профессионалов! Мы ответим на любые ваши вопросы и создадим вместе проект вашего дома!

Контакты

г. Санкт-Петербург, 

ст.м.  Озерки

Выставка коттеджей в Озерках

Выборгское шоссе 212

CRM-форма появится здесь