Дом с разноуровневой крышей одноэтажный

Дом из теплоизоляционных сип панелей с разноуровневой крышей по стоимости строительства не превышающей половину стоимости однокомнатной квартиры в Санкт-Петербурге.
Разноуровневая крыша придает особый шарм строению, позволяет выгодно отличаться на фоне типичной коттеджной застройки и лишь не намного дороже по стоимости строительства, что объясняется повышенным расходом строительных материалов.

Заказав возведение дома, вы становитесь обладателем ликвидного вложения денежных средств в загородную недвижимость.
Качественно построенные дома с хорошим участком всегда пользовались большим спросом, что особенно актуально в последние годы.



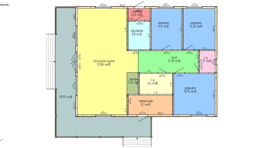
Проект дома SIPL-187-1


  • площадь: 187 М.КВ.
  • размеры:
  • спален: 3
  • санузлов: 1
  • технология: СИП панели
  • материнский капитал: да
  • ипотека: да
  • поэтапная оплата: да



цЕНА НА СТРОИТЕЛЬСТВО ДОМА И КОМПЛЕКТАЦИЯ

Стоимость строительства формируется исходя из актуальных цена н рынке строительных материалов на день формирования запроса

Эконом
Экономный подход!
Произведем домокомплект и соберем коробку дома на участке заказчика.
    КОРОБКА ДОМА
    ПЕРЕКРЫТИЯ С УТЕПЛЕНИЕМ
    КРОВЕЛЬНЫЙ МАТЕРИАЛ
    ШУМОИЗОЛЯЦИЯ
    ДОСТАВКИ до 70 км от КАД








Узнать актуальную стоимость
Дом под отделку
Сделаем самое основное!
Изготовим домокомплект и соберем дом на вашем участке
    ФУНДАМЕНТ СВАЙНЫЙ
    КОРОБКА ДОМА
    ПЕРЕКРЫТИЯ С УТЕПЛЕНИЕМ
    КРОВЕЛЬНЫЙ МАТЕРИАЛ
    ШУМОИЗОЛЯЦИЯ
    ОКНА
    ВХОДНАЯ ДВЕРЬ
    ДОСТАВКИ до 70 км от КАД



Узнать актуальную стоимость
Дом с фасадом
Вы получаете готовый дом с фасадной отделкой.

Выбор заказчиков

    ФУНДАМЕНТ СВАЙНЫЙ
    КОРОБКА ДОМА
    ПЕРЕКРЫТИЯ С УТЕПЛЕНИЕМ
    КРОВЕЛЬНЫЙ МАТЕРИАЛ
    ШУМОИЗОЛЯЦИЯ

    ОКНА
    ВХОДНАЯ ДВЕРЬ
    ФАСАДНАЯ ОТДЕЛКА
    ПОДШИВ СВЕСОВ КРЫШИ
    ОБНАЛИЧКА ОКОН И ДВЕРЕЙ
    ОТЛИВЫ ДОМА И ОКОН
    ТЕРРАСНАЯ ДОСКА НА ТЕРРАСЕ
    ДОСТАВКИ до 70 км от КАД


Узнать актуальную стоимость
Посчитаем ваш проект дома
Вам понравился проект дома на другом сайте?

Вышлите его нам на просчет и мы поможем вам определиться со стоимостью строительства с указанием комплектации.

Напишите в чат
Свяжитесь прямо сейчас!

Обсудите все нюансы с нашей командой профессионалов! Мы ответим на любые ваши вопросы и создадим вместе проект вашего дома!

Контакты

г. Санкт-Петербург, 

ст.м.  Озерки

Выставка коттеджей в Озерках

Выборгское шоссе 212

CRM-форма появится здесь